burza inspiracji
sobota, 11 maja 2013
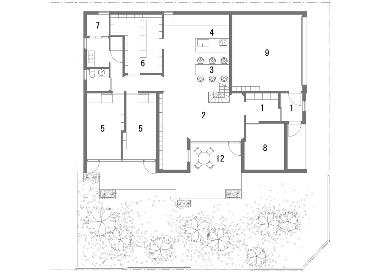
House K, małe domki w dużym domu
House K,
Hokkaido w Japonii
projekt: Yoshichika Takagi
zdjęcia © Seiya Miyamoto,
Toshiyuki Yano
via
:
designboom
Brak komentarzy:
Prześlij komentarz
Nowszy post
Starszy post
Strona główna
Subskrybuj:
Komentarze do posta (Atom)
Brak komentarzy:
Prześlij komentarz